МБОУ СОШ № 15 г. Батайск, мкр-н «Авиагордок», 44 А
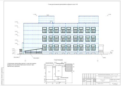
На объекте МБОУ СОШ № 15 г. Батайска выполнен комплекс инженерно-технических и строительно-монтажных работ по устройству вентилируемого фасада.
Произведен расчёт стоимости системы вентилируемого фасада с учётом геометрии здания и типа облицовочного материала.
Произведён подбор материалов и комплектующих (подсистема, утеплитель, крепёж, облицовка, доборные элементы) в соответствии с техническим заданием и требованиями АР.
Разработаны и согласованы конструктивные узлы и технические решения примыканий
В процессе реализации проекта осуществлялся технический контроль поставки материалов Заказчиком на объект в соответствии с графиком производства работ.
Проверялось соответствие поставляемых материалов проектным решениям и спецификациям.
После подготовки выполнены строительно-монтажные работы по устройству вентилируемого фасада:
— монтаж кронштейнов и направляющих подсистемы;
— устройство теплоизоляционного слоя;
— монтаж ветро-влагозащитной мембраны;
— установка облицовочных элементов (керамогранит, сайдинг L-брус);
— устройство примыканий и завершающих элементов.
Кроме того, были выполнены работы по устройству покрытий (оголовков) вентиляционных шахт:
— разработка и согласование конструкции и узлов примыкания покрытий вентиляционных шахт на кровле в соответствии с проектной документацией;
— изготовление и монтаж каркаса оголовков вентиляционных шахт;
— устройство защитных покрытий из металлических элементов;
— монтаж кровельных колпаков (зонтов) вентиляционных каналов;
— герметизация примыканий к кровельному покрытию;
— обеспечение водоотведения и защиты шахт от атмосферных осадков.
Работы на объекте были выполнены в соответствии с проектной документацией и требованиями действующих строительных норм и правил.
Для успешной сдачи объекта в эксплуатацию сотрудниками компании подготовлена исполнительная и рабочая документация:
— монтажные схемы;
— схемы раскладки облицовки;
— акты скрытых работ;
— исполнительные схемы и журналы работ.
